巧用隔断 大客厅分出小书房
参与互动(0)
■简约的房间布局凸显出质感

■硬包与灯光应用更显活泼时尚

■隔断柜的背景带灯为奢华感加分

■玻璃与柜体的虚实结合很有味道

■简约的电视背景墙低调时尚

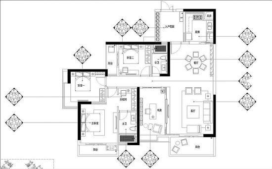
【户型解读】
面积:138平方米
户型:三房两厅变四房两厅
卧室
书房
客厅


■马毛地毯与大理石、不锈钢材质形成互补
■新快报记者 林恒华
房子的大小会因居住者的多少而改变。
138平方米的三房两厅,对于大城市来说可以说是大户型了,可当入住的是三代同堂时,没有客房、没有书房,即使是大户型,住起来也稍显局促。
其实,对于整体空间足够大的家庭,不妨看看可不可以从大空间中分出小空间,增加整体利用率。就像蔡小姐家的案例一样,设计师巧用隔断,将大客厅一分为二,在原来三房的基础上,变出一个书房。
高级酒店一般的舒适感
现代奢华风格讲究点到即止的装饰手法,然而这种装饰与现代简约又有所不同。黄金玲说,现代奢华注重硬装手法的简洁,但不像现代简约那么随意。看似简洁的外表之下,常常折射出一种贵族气质。
就像在蔡小姐家中,这种气质是通过软装元素来体现的。以蔡小姐家的三间房来讲,房间的布局都十分方正,甚至说单调,主体空间是大床,床位的墙面挂电视,窗的一侧是阳台或窗户,另外一侧是靠门的衣柜。然而,在这样简单的布局里,整体空间却依然能给人一种有如高级酒店般强烈的品质感。
黄金玲表示,在这个案例中,设计师在不同房间的背景墙做文章,凸显出低调优雅的个性。例如在主卧室中,墙面装饰一块实木硬包,与简约的床头软包形成材质对比,硬包后安装灯带,为卧室带来几许轻盈、浪漫的感觉;儿童房的背景墙同样用实木元素,但做出立体的层次感,并配合灯光带,更加时尚活泼;老人房则做上规则的软包,再装饰上挂画,体现出安静沉稳的气场。
通顶定制储物柜+玻璃墙
电视墙背后,靠着书房的一面大书柜。
书房的空间比较小,为了保持空间的通透性,设计师选择了没有门板的实木柜体,对称、通顶的设计让书房看起来更加低调内敛。另外,书柜并没有占满整面墙,也是在边缘的部分留有玻璃隔断。既达到空间分隔的作用,同时也起到相当不错的装饰效果,一举两得。
蔡小姐除了可以在书柜上摆放平常阅读的书本、文件之外,还可以摆放一些装饰品,更加凸显现代奢华的味道。而为了让“奢华”的味道更加浓烈,设计师在柜子的层板后方都安装了灯带。打开灯光时,书柜后方的空间显得更加通透、开放,与实木材质的柜身,玻璃或金属的装饰物相衬,让视觉一下子活跃起来。
一道隔断“生”出一个书房
138平方米的房子,对于多数大城市的家庭来说,应该算是“改善型”的住房了。然而,三房的空间要住进三代同堂,连招待客人暂住的房间都没有,对于蔡小姐家来说,还是显得有点挤。蔡小姐最迫切需要一个书房,平常需要偶尔在家办公,没有书房很不方便。
设计师黄金玲表示,其实这个想法并不难。蔡小姐家的总面积不小,特别是客厅比较大。如果在客厅的两端分别放置电视柜和沙发,两者之间的距离会变得比较远,不适合平常的观看习惯。于是,设计师选择在客厅的两面墙之间,竖起一道隔断,将客厅一分为二,隔断与餐厅墙面对齐。这样,面积大的部分还是一个完整的客厅,而面积小的部分,则作为一个半开放式的书房。隔断的一面作为客厅背景墙,一面作为书房的书柜。
为了保持客厅的空间感,也为了凸显现代奢华的风格,设计师没有在客厅背景墙做多余的柜子,也没有采用电视柜,而是整面墙采用时尚软包,电视嵌入墙面。这样的设计既保留了较宽的过道,不阻挡空间的光线,营造出一种简约轻盈的时尚味道。
对话设计师
正雄装饰设计师 黄金玲
大理石、不锈钢、水晶、皮革,软装成就现代奢华
现代奢华是当下比较受欢迎的一种着重质感体现的装修风格,在酒店设计中也很受欢迎。在硬装修上,这种风格或大量采用镜面材质、不锈钢、大理石等,体现现代质感。通过亮丽的材质面,体现出时尚奢华的空间感受。
而现代奢华的氛围营造,更多要靠软装手段来实现。黄金玲表示,可以多采用具有光亮漆饰面的家具或装饰品。例如大理石、不锈钢等现代感很强的材质,在家具上能够凸显出冷峻的时尚感。在这个案例中,例如客厅茶几和沙发的不锈钢椅脚,台灯上的不锈钢装饰,看似不经意,却能够为空间画上几笔清晰的奢华线条。
为了缓解大理石、金属、玻璃等材质的“硬度”,在软装饰上,可以用水晶、皮革、丝绒的材质,一来可以表现出奢华的语境,二来也有软化空间的作用。例如客厅地面的马毛地毯,就很好地与空间中的不锈钢、玻璃、大理石形成互补,让空间更具奢华魅力。这些装饰元素也可以体现在挂画、摆设、花瓶等软装饰品种,让空间更加立体、更加生动。
>房产新闻精选:




















